スウェーデンハウス宿泊体験 1日目 スウェーデンハウスのモデルハウスに宿泊体験しました。 可愛らしいモデルハウスに北欧の家具で統一された内装にテンションが上がります。 wwwcue14com 目次 宿泊体験2日目の朝 モデルハウスを探検 間取り図って数字だけじゃない! 今回の比較前の時点でゆりは、 天井下げ不要の積水ハウス vs 広いスウェーデンハウス の勝負になると思っていました。 しかし、実際には全く違う結果が見えてきたのです! 間取り図のおさらい ギリギリまで粘ってしかし、 間取り スウェーデンハウスには惚れているのだけれど、値段面でのハードルが高すぎる。 そのことを頭に入れてサキタテの間取り図をもう一度見てみると、壁が極端にないことに気が付き
スウェーデンハウス 出店ハウスメーカー 牛田住宅情報スクエア アスタ 多彩なモデルハウスが集結
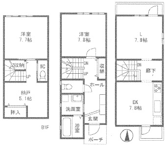
スウェーデンハウス 間取り図
スウェーデンハウス 間取り図-一戸建て((株)スウェーデンハウス 北関東支店が提供する(鴻巣市 北新宿 (行田駅 ) 2階建 3LDK)物件の詳細情報。一戸建て・不動産の情報サイト アットホームなら、ご希望にぴったりのマイホーム<一軒家・家 購入の情報>が簡単に検索できます。 素人の書いた間取り図は所詮、素人レベル。 実力の差を思い知らされた。 この件に関してはまた別の機会に書いていこうと思う。 正直今回のスウェーデンハウスのモデルハウスは間取り的に非現実的すぎて、驚かされた。



スウェーデンハウス 間取りの改悪 スウェーデンハウスで学ぶマイホームの基礎知識
高気密高断熱のスウェーデンハウスならではの開放的な心地よいゆとりある空間を体感下さい。 OPEN 2109 住 所 〒 北海道札幌市中央区北5条西17丁目132 STVハウジングプラザ ギャラリー北円山 電話番号Hemma Bäst!(ヘンマ ベスト)は、 豊富なプラン・バリエーションの中から お好きな間取りとカラースタイルをお選びいただき、 こだわりの住まいをカタチにする、 スウェーデンハウスからの新しい提案。 豊富なバリエーションの中から あなたらしいで Fumiko Saitou さんのボード「間取り」を見てみましょう。。「間取り, 住宅 間取り, 平面図」のアイデアをもっと見てみましょう。
スウェーデンハウスで暮らす オーナー様こだわりの家をご紹介。 厨房やショップ スペースも実現。 ケーキ屋さんという 夢を叶えた家 のどかな場所で 趣味を満喫 三角屋根の 温もりのある家 心地よさとデザインを追求大人の空間を楽しむ家 お気に スウェーデンハウスの標準仕様をどこよりも詳しく解説します! 「スウェーデンハウスで家を建てようと思ってるんだけど、標準仕様ではどんな設備がついてるの? 」 「スウェーデンハウスの標準仕様について、くわしく知りたい! 」 ハウスメーカー11年8月21日(日) 午前1000~/スウェーデンハウス打ち合わせ 2度目の宿泊体験のあと、スウェーデンハウスで家を建てる気満々になった僕たちは、外観の窓の配置もできるだけ自分たちで考えていきたいと思い、宿泊体験の打ち合わせ時にいただいた間取り図をもとに東西南北の立面図を
〒 北海道石狩郡当別町スウェーデンヒルズ2268番地17 重厚な造りで知られる「スウェーデンハウス」で、木のぬくもりを感じながら北欧スタイルの生活が楽しめます。 1階間取り図 2階間取り図スウェーデンハウスで30坪の平屋を建てる場合、間取りはどんな感じになるのでしょうか? また、 実際よりも広く見せるためにはどんなテクニックが使えるの? スウェーデンハウスの過去事例やオーナーさんの情報などを元に、30坪の間取りや価格情報についてまとめてみました。で miku さんのボード「スウェーデンハウス」を見てみましょう。。「スウェーデンハウス, スウェーデン, 北欧住宅」のアイデアをもっと見てみましょう。



スウェーデンハウスに宿泊してきました 間取り図のダイニング トイレのサイズ確認 グンマーで本当の高気密高断熱の平屋を建てるぞ



町田市忠生4丁目 スウェーデンハウス施工の注文住宅の中古物件情報 Fmrxya2c 三井のリハウス
坪プラン ※ 本プランは、比較的ご希望の多い広さと間取のパターンをシミュレーションしたものであり、外観写真とは同一モデルではありません。 したがい、概ね近似ながら、面積は若干相違します。 〈参考イメージとして掲載した写真の実際データ2 藤沢モデルハウス・間取り図 21 1F 床面積:m2(33 スウェーデンハウスの間取り図が出ました! 細やかな心遣いに感動! 土地の契約期限が異例の早さ だったので、急遽 土地契約前日 に、検討中のパナソニックホームズ、積水ハウス、スウェーデンハウスと打ち合わせをすることになりました。 今回の



スウェーデンハウスのメンテナンス費用は その金額が愛の形



スウェーデンハウスにプラン依頼とプラン到着 マイホーム建築の記憶
スウェーデンハウスの間取り図の例 これから住宅建設を考える人にとって 間取りは大きな悩みになる要素 です。 いかに快適に、そしてこだわりを活かせるか、今後の生活の要にもなる部分なのでじっくりと時間をかけて考えたいところ。北陸スウェーデンハウスがご用意した45の間取りからお好きな間取りをお選びいただくプランです。 Prev Next ベースプランをもとに間取りやレイアウトのバリエーションを豊富にラインナップ。 家族構成やライフスタイル、お好みに応じて、多彩な45プラン 出典:suumo 公式サイト スウェーデンハウスの実例 将来を見据えて代で建てた家 間取り図 2階のファミリールームは、いずれは間仕切りして子供部屋にするのだそうです。



11年10月中旬 間取り 毎日ナンカ変 楽天ブログ



Suumo スウェーデンハウスのスウェーデンハウス 吉島モデルハウス 注文住宅
間取り図 間取り図をみる モデルホームからのお知らせ 情報の有効期限 21年10月末日 お問い合わせ先 ㈱スウェーデンハウス 八王子展示場 tel: url スウェーデンハウスならではの高い気密・断熱性能に加え、オール電化、太陽光発電等を採用することで、快適・省エネで環境にやさしい住まいをご提案します。 1 藤沢モデルハウス・ギャラリー;新宿区中井二丁目 戸建 スウェーデンハウス施工 1億 7,800万円 ローンシミュレーション 間取り 4LDKWIC 所在地 東京都新宿区 中井2丁目 建物面積 m2 土地面積 m2 交通 都営大江戸線 「 中井 」 駅 徒歩8分 西武新宿線 「 中井 」 駅 徒歩7分



スウェーデンハウス 出店ハウスメーカー 牛田住宅情報スクエア アスタ 多彩なモデルハウスが集結



北欧の風を感じるスウェーデンハウスの住宅間取り情報 転勤族マイホーム計画
スウェーデンハウスに宿泊してきました♪ 間取り図のダイニング・トイレのサイズ確認 実は「2回目」です。 真冬の高高体験をさせてもらいました。 その時初めて高高に泊まったのですが。 その時感じた事 ・宿泊体験をした家の暖房器具はエアコンスウェーデンハウスと日々の暮らし スウェーデンハウスのオーナーになりました。 メンテナンスも含めて記録としてブログに 残していきたいと思います。2 大宮南モデルハウス・間取り図 21 1F 床面積:m2(3955坪) 22 2F 床面積:m2(3115坪) 3 大宮南モデルハウス・アクセス



スウェーデンハウス35 40坪我が家の価格 間取り公開 坪単価も解説 Hyggescape



スウェーデンハウス アルム のモデルホーム 八王子住宅公園 Abcハウジング
スウェーデンハウスのデメリットでまず挙げられるのは、家の施工品質にばらつきがあること。 実際にスウェーデンハウスで建てたひとの声を聞くと、以下のような報告が見られました。 玄関ドアがノブを回さなくても開け閉めできてしまう 床がへこん長崎モデルハウス 〒 長崎県諫早市多良見町東園 営業時間/午前1000~午後530 定休日/水曜日 TEL/09 駐車場/あり アクセス方法/長崎道「長崎多良見IC」から車で約10分 上記の住所と電話番号では地図が表示されない場合がござい こんにちは!honeyです♪ 2回目の今日は実際に私たちが ・なぜモデルハウス風にしたのか ・どのように家の間取りを決めたのか この2点を中心にお話していこうと思います( ´ ` ) *モデルハウス風の家にした理由*・・・



うちの設計図 スウェーデンハウス建築日記 札幌



間取りシミュレーション新登場 スウェーデンハウス スタイル Sweden House Style Facebook



間取り スウェーデンハウス 家づくりを一度やり直して工務店さんで建てた記録です



パッケージプラン 北陸スウェーデンハウス 石川県 富山県 福井県の注文住宅 輸入住宅 家族が長く安心して住み継ぐことのできる高気密高断熱の家づくり



建築実例 性能抜群の北欧デザインの住まいを 美しいイングリッシュガーデンが彩る 北陸スウェーデンハウス福井店 家づくりナビ



日出町仁王 スウェーデンハウス hemmabast 3ldkの中古一戸建て情報 スマイティ 物件番号 44



スウェーデンハウス間取りシミュレーション



大分市グレイスタウン青山1 3 3 分譲住宅 グラン 北欧輸入住宅 注文住宅は大分のスウェーデンハウス九州支店へ



屋根付きアウトドアリビング ルフトデッキ のある平屋 レットナード スウェーデンハウス



スウェーデン住宅 商品紹介 フリージアハウス株式会社



住宅展示場 3 パッシブハウスの設計監理 今川建築設計監理事務所



スウェーデンハウス建築日記 東京 それはちょっと 建物は誰のもの 建物プランの考え方



スウェーデンハウス 間取りの改悪 スウェーデンハウスで学ぶマイホームの基礎知識



スウェーデンハウスの間取り図が出ました 細やかな心遣いに感動 ゆりのいえ 積水ハウス シャーウッド 2階建て30坪



1



ハウスメーカー選び のブログ記事一覧 Bickey S House



外観 スウェーデン ハウス 間取り



スウェーデンハウス間取りシミュレーション



上北沢スウェーデンハウス 東京都世田谷区 の賃貸物件情報 タウンハウジング E



江原町2丁目スウェーデンハウス 地下に防音室あり 一戸建て5ldk 楽器を弾くためのお部屋探し



長崎県諫早市 分譲住宅 北欧輸入住宅 注文住宅は大分のスウェーデンハウス九州支店へ



輸入住宅の間取りと価格相場 おすすめハウスメーカーまとめ



Suumo スウェーデンハウスのスウェーデンハウス 大府モデルハウス 注文住宅



スウェーデンハウス間取りシミュレーション



駒ケ根市小町谷スウェーデンハウス 戸建 居住用 の物件情報 サンポー不動産売買情報 長野県松本市 伊那市 駒ヶ根市 飯田市の土地 中古住宅



スウェーデンハウスで家を建てるには年収いくら必要か計算してみた マイホームのある暮らし



家の間取りを完成させよう スウェーデンハウスで家づくり



第9回打ち合わせ その1 最終見積もりの発表 Sweets Dish Sakitateでスウェーデンハウスを建てるぞ



3



屋根付きアウトドアリビング ルフトデッキ のある平屋 レットナード スウェーデンハウス



第2回打ち合わせ 間取りを考える Sweets Dish Sakitateでスウェーデンハウスを建てるぞ



2



間取りの修正 設備の仕様決め スウェーデンハウスで学ぶマイホームの基礎知識



2



アットホーム 鴻巣市 北新宿 行田駅 2階建 3ldk 鴻巣市の未入居一戸建て 提供元 株 スウェーデンハウス 北関東支店 一軒家 家の購入



スウェーデンハウス 大分市oabパークプレイス住宅展示場に新モデルハウス 福岡の注文住宅新築一戸建て rmeバーチャル住宅展示場福岡



建築実例 もし次建てるとしても やっぱりスウェーデン 8年暮らしても快適で大満足 北陸スウェーデンハウス金沢店 家づくりナビ



スウェーデンハウスのサキタテ 3000万円 31坪 4ldk 家語



西宮モデルハウス スウェーデンハウス 関西支店 木製サッシ3層ガラス窓の輸入住宅 兵庫 大阪 滋賀 広島



スウェーデンの家の間取り ヘイ ヘイ スウェーデンの家のブログ



スウェーデンハウス 間取りの改悪 スウェーデンハウスで学ぶマイホームの基礎知識



スウェーデンハウス間取りシミュレーション スウェーデンハウス 公式 21 住宅 間取り スウェーデンハウス 間取り



スウェーデンハウス モデルハウス一覧 なとり りんくうタウン総合住宅展示場ジアス



スウェーデンハウス ヒュースプレミエ のモデルホーム ハウジングワールド立川 Abcハウジング



スウェーデンハウス モデルハウス一覧 なとり りんくうタウン総合住宅展示場ジアス



屋根付きアウトドアリビング ルフトデッキ のある平屋 レットナード スウェーデンハウス



建築日記 鎌倉 地盤調査 プランヒアリング



スウェーデンハウス間取りシミュレーション



音更町宝来西町北1丁目 スウェーデンハウス施工 売家 北海道河東郡音更町宝来西町北1丁目 8番5 2 650万円の中古一戸建て 中古住宅や中古物件情報 センチュリー21ネクストワン



スウェーデンハウス 非現実的な間取りの宿泊体験 回転窓や扉のない空間に驚きの連続 心も体も暖かい家づくり



スウェーデンハウス間取りシミュレーション



平屋 スウェーデンハウスの価格 坪単価 や間取りを大調査 全部わかる 平屋チャンネル



アットホーム 名古屋市守山区 大字上志段味 高蔵寺駅 2階建 3ldk 名古屋市守山区の未入居一戸建て 提供元 株 スウェーデンハウス 名古屋支店 一軒家 家の購入



スウェーデンハウス 出店ハウスメーカー 牛田住宅情報スクエア アスタ 多彩なモデルハウスが集結



アットホーム 宇都宮市 砥上町 宇都宮駅 2階建 3ldk 宇都宮市の未入居一戸建て 提供元 株 スウェーデンハウス 北関東支店 一軒家 家の購入



スウェーデンハウスで家を建てるなら平屋住宅もおすすめ 転勤族マイホーム計画



スウェーデンハウスのサキタテ 3000万円 31坪 4ldk 家語



Yahryスウェーデンハウス



快適さとデザイン性を親子二代で味わうスウェーデンハウスの二世帯住宅 転勤族マイホーム計画



明石モデルハウス スウェーデンハウス関西支店 スマートフォン スマホ サイト 木製サッシ3層ガラス窓の輸入住宅 兵庫 大阪 滋賀 スウェーデンハウス 輸入住宅 木製サッシ



スウェーデンハウス Lind Huvudstud リンド ヒューブスタッド のモデルホーム 伊丹 昆陽の里住宅公園 Abcハウジング



上北沢スウェーデンハウス 仲介手数料半額 男性限定 南向き 2ldk 上北沢スウェーデンハウス 仲介手数料半額 他社物件も半額です



西宮モデルハウス スウェーデンハウス 関西支店 木製サッシ3層ガラス窓の輸入住宅 兵庫 大阪 滋賀 広島



屋根付きアウトドアリビング ルフトデッキ のある平屋 レットナード スウェーデンハウス



西宮モデルハウス スウェーデンハウス 関西支店 木製サッシ3層ガラス窓の輸入住宅 兵庫 大阪 滋賀 広島



スウェーデンハウスを 体感 できるモデルハウス一覧 全国ネットの輸入住宅メーカーとして30年以上の実績を誇るスウェーデンハウス スウェーデンハウス 住宅 住宅メーカー



リンド ヒューブスタッド スウェーデンハウス 静岡 静岡県内の総合住宅展示場 Sbsマイホームセンター



スウェーデンハウスの価格は恐ろしく高い 値引き交渉で安くなる



パッケージプラン 北陸スウェーデンハウス 石川県 富山県 福井県の注文住宅 輸入住宅 家族が長く安心して住み継ぐことのできる高気密高断熱の家づくり



ホームズ 上北沢スウェーデンハウス 2ldk 賃料13万円 2階 49 7 賃貸アパート住宅情報



ノムコム 新宿区中井二丁目 戸建 スウェーデンハウス施工 中古一戸建て Ee5x5001



スウェーデンハウス 水戸見川 宿泊体験モデルハウス jr常磐線 赤塚 車3 6km の新築一戸建て購入情報 いつもnavi不動産



うちの設計図 2階 スウェーデンハウス建築日記 札幌



スウェーデンハウス中目黒1号室 恵比寿の賃貸マンションならアポロンへ



モデルハウスでスウェーデンハウスを 体感 全国ネットの輸入住宅メーカーとして30年以上の実績を誇るスウェーデンハウス スウェーデンハウス 北欧住宅 ハウス



スウェーデンハウス 長崎モデルハウス第一号をオープン 福岡の注文住宅新築一戸建て rmeバーチャル住宅展示場福岡



中央区笹丘2丁目 中古戸建 スウェーデンハウス Lixil不動産ショップのera不動産online



岡山rsk住宅展示場 スウェーデンホーム 北欧輸入住宅



パッケージプラン 北陸スウェーデンハウス 石川県 富山県 福井県の注文住宅 輸入住宅 家族が長く安心して住み継ぐことのできる高気密高断熱の家づくり



3



アットホーム 苫小牧市 北光町1丁目 青葉駅 2階建 3ldk 苫小牧市の未入居一戸建て 提供元 株 スウェーデンハウス 北海道支社 一軒家 家の購入



まちなかモデルハウス スウェーデンハウス 高気密高断熱の輸入住宅 住宅メーカー スウェーデン住宅 住宅 間取り 住宅 部屋 間取り



輸入住宅 長崎 長崎モデルハウス 北欧輸入住宅 注文住宅は福岡のスウェーデンハウス九州支店へ



つくし苑別荘地内 戸建物件 物件番号 H 019



全国のモデルハウスを巡りと間取りの決め方 スウェーデンハウスで家づくり



アルム ヒューブスタッド モデルハウス情報 スウェーデンハウス ナゴヤハウジングセンター



2



スウェーデンハウス間取りシミュレーション



スウェーデンハウス つくばみどりの宿泊体験モデルハウス つくばエクスプレス みどりの 歩8分 の新築一戸建て購入情報 いつもnavi不動産



Suumo スウェーデンハウスのスウェーデンハウス 豊平モデルハウス 注文住宅



スウェーデンハウス 間取りの改悪 スウェーデンハウスで学ぶマイホームの基礎知識



パッケージプラン 北陸スウェーデンハウス 石川県 富山県 福井県の注文住宅 輸入住宅 家族が長く安心して住み継ぐことのできる高気密高断熱の家づくり



スウェーデンハウス アルム ヒューブスタッド のモデルホーム 明石 海岸通り住宅公園 Abcハウジング



相見積 スウェーデンハウス 最終見積もり ゆりのいえ


0 件のコメント:
コメントを投稿